Immobile 001/26
[in vendita] Completamente ristrutturato nel 2022.
Foto 1
Foto 2
Foto 3
Foto 4
Foto 5
Foto 6
Foto 7
Foto 8
Foto 9
Foto 10
Foto 11
Foto 12
Foto 13
Foto 14
Caratteristiche:
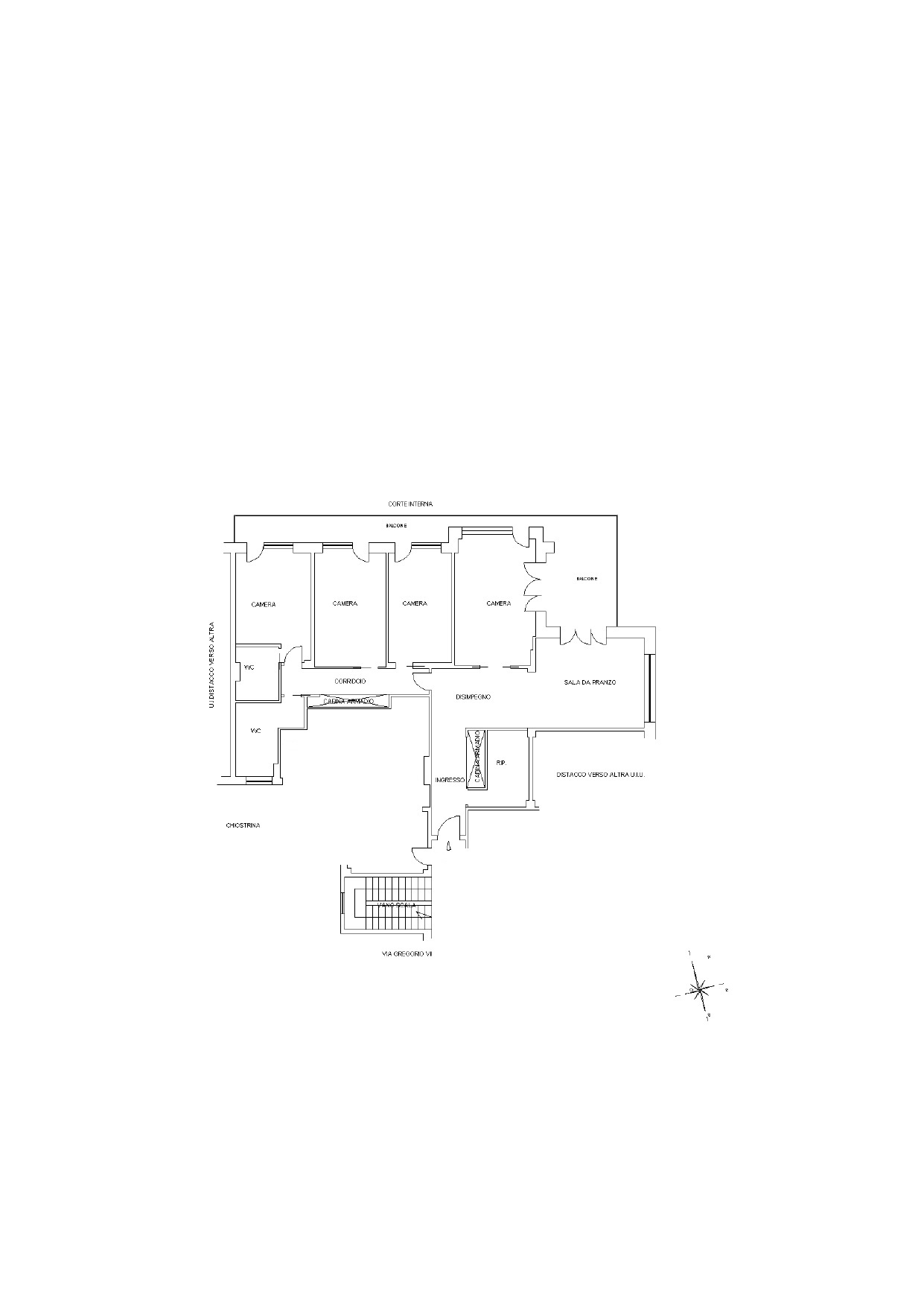
Anno di costruzione: 1961
Piani palazzina: 5
Piano: 1
Ascensore: si
Mq. coperti: 168
Mq. scoperti: 30
Condizione immobile: Ottime
Riscaldamento: Autonomo
Stato immobile: Libero-Proprietario
Salone: 1
Camere: 3
Cucina: 1
Ingressi: 1
Servizi: 2
Ripostiglio: 1
Terrazzi: 1
Mq. terrazzi: 30
Prezzo: € 679.000,00
Indirizzo:
Gregorio VII - Via Gregorio VII,RomaRichiedi un appuntamento per questo immobile:
Al momento è possibile richiedere un appuntamento per la visita dell'immobile
contattandoci al numero (+39) 06 66 26 261
